Từ căn hộ nhỏ chỉ gồm 1 phòng kiến trúc sư đã cải tạo lại thành 2 phòng ngủ nhỏ để phù hợp với nhu cầu sử dụng của gia chủ.
Gửi kiến trúc sư!
Hiện nay, gia đình tôi mới mua một căn hộ chung cư có diện tích 54m2. Hiện tại mặt bằng căn hộ chỉ có 1 phòng ngủ, nay tôi muốn cải tạo thành 2 phòng ngủ. Nhờ kiến trúc sư tư vấn giúp vợ chồng tôi.
Dưới đây là mặt bằng căn hộ hiện tại.

Tôi xin cảm ơn!
Hoàng Lan - Hà Nội
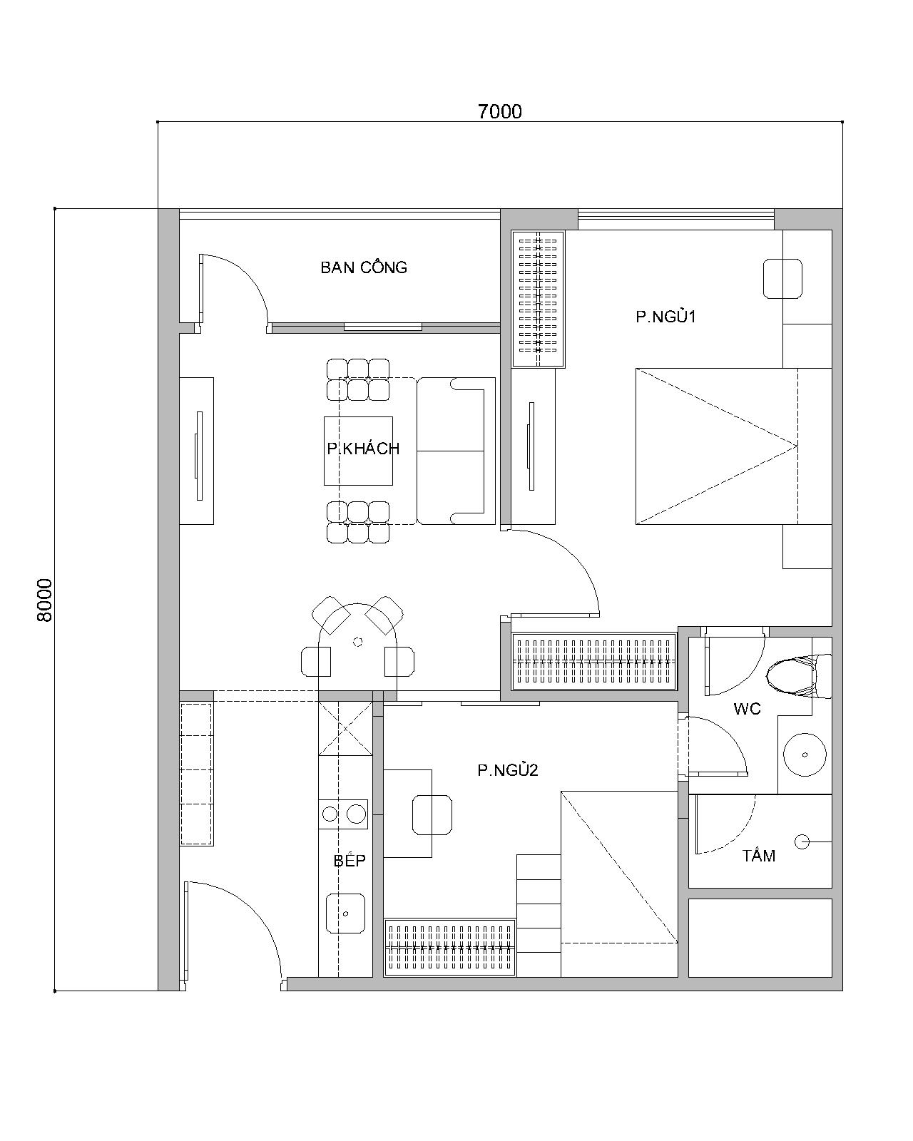
Kiến trúc sư tư vấn:Dựa theo những thông tin mà độc giả cung cấp và yêu cầu thiết kế cho căn hộ, chúng tôi đã đưa ra mặt bằng bố trí nội thất như sau.

Với nguyện vọng cải tạo căn hộ 54m² để nâng cấp từ 1 lên 2 phòng ngủ, chúng tôi đề xuất phương án cải tạo khu vực bếp thành một phòng ngủ mới, diện tích phòng tắm sẽ được thu hẹp lại, đồng thời diện tích ban công sẽ được thiết kế làm khu vực bếp đơn giản, nhỏ gọn.
Phòng ngủ mới có diện tích bé hơn nên sẽ được sử dụng làm phòng ngủ cho con. Nội thất trong phòng sẽ được bố trí với gam màu sáng kèm theo những hình vẽ ngộ nghĩnh trên tường giúp không gia trở nên sinh động hơn.

Bên cạnh đó, nội thất thông minh được sử dụng để phù hợp với diện tích nhỏ. Giường hộp kết hợp với tủ quần áo vừa tiết kiệm được diện tích trong khi bé vẫn có một chỗ ngủ thoải mái. Tủ đứng trên được dùng để quần áo. Hộp và kệ dưới gầm giường sẽ là nơi cất đồ chơi cho bé. Với thiết kế tiện ích này, chắc chắn bé sẽ có nhiều không gian để vui chơi hơn.
Đối với không gian bếp, do tận dụng khu vực ban công nên diện tích căn bếp sẽ khá khiêm tốn. Tuy nhiên với cách sắp xếp và trang trí nội thất bếp một cách thông minh sẽ tạo cho không gian bếp chật hẹp nhà bạn trở nên tiện nghi, ngăn nắp đem lại sự ấm cũng cho nhà.

Bạn cũng nên sử dụng triệt để những đồ nội thất đa năng và kệ đựng đồ nhằm “cất giấu” bớt đồ đạc cho không gian thông thoáng và rộng rãi hơn. Đặt chiếc kệ đựng đồ sát tường vừa để sắp xếp đồ đạc gọn gàng lên kệ vừa tạo điểm nhấn trẻ trung cho căn phòng.
Hy vọng với phương án bố trí của trên sẽ đáp ứng được tiện nghi cũng như nhu cầu sinh hoạt của bạn và gia đình. Sau đây là một số hình ảnh thiết kế phòng khách và phòng ngủ cho bố mẹ để bạn có thể tham khảo thêm.

Sofa thẳng 3 chỗ ngồi khiến được bố trí áp sát tường dành khoảng trống cho các mục đích sinh hoạt khác. Chiếc TV treo tường và hệ thống tủ kệ chứa đồ bên dưới giúp không gian phòng khách thoáng và rộng hơn. Ngoài ra, phòng khách được sơn với tông màu sáng tạo cảm giác không gian được mở rộng hơn.

Với phòng ngủ của bố mẹ, nội thất được tối giản để cho căn phòng có cảm giác không bị chật chội và ngột ngạt. Những ngăn kéo phía dưới giường được tận dùng làm không gian chứa đồ
0 nhận xét:
Đăng nhận xét